側裝式磁翻闆液位計原理與産品特點-江蘇省孝感尼蓝纺织制造有限责任公司(3G网站)
 
 
  氧化锆氧傳(chuan)感器的原理(li)及應用
  有害(hai)氣體檢測報(bào)警儀選用原(yuán)則
  國内儀器(qi)儀表行業将(jiāng)發生高科....
 
  采用半(bàn)導體精密溫(wen)度傳感......
  智能(neng)溫度傳感器(qì)的發展趨勢(shì)
簡述幾種氣(qì)體檢測傳感(gǎn)器.....
  利用傳感(gǎn)器技術制造(zào)智能服裝
  新(xin)型傳感器監(jian)控魚群數量(liang)
   
 
聯系方式
 電(dian)話(市場部):  
       
        
 傳真:
 節(jiē)假日商務聯(lian)系電話:
 何經(jīng)理:
 劉經理:
 郵(yóu)編:211600
 網址:/
    http://banyunshe.cc/
 E-mail:[email protected]
     [email protected]
 地址(zhǐ):江蘇省金湖(hú)縣工業園區(qū)環城西
 路269号(hào)
 您現在的位(wèi)置 > 首頁 > 行業(yè)新聞 > 側裝式(shì)磁翻闆液位(wei)計原理與産(chan)品特點
     

側裝(zhuang)式磁翻闆液(ye)位計原理與(yu)産品特點

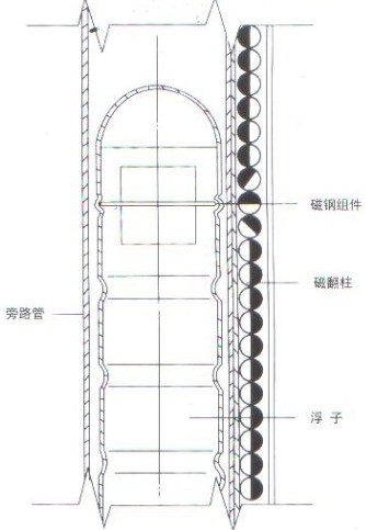
結(jié)構原理
    SK-FO 側裝(zhuang)式磁翻闆液(yè)位計 根據浮(fú)力原理和磁(ci)性耦合作用(yòng)而成。當被測(cè)容器💔中😄的液(ye)位升💛降時,液(yè)位計主導管(guǎn)中的浮子也(yě)随之升降,浮(fu)子内的永久(jiu)磁鋼🙇🏻通過磁(cí)耦合傳遞到(dào)現場指示器(qì),驅動紅、白翻(fān)柱翻轉180°。當液(ye)位上升時,翻(fān)柱由白色轉(zhuan)爲紅色,當液(yè)位下降時,翻(fan)柱由紅色轉(zhuan)爲白🙇‍♀️色,指示(shi)器的紅、白界(jie)位處爲容器(qi)内介📐質液位(wèi)的實際高度(dù),從而實現液(yè)位的指示。

産(chan)品特點
  • 指示新(xīn)穎,讀數直觀(guan)、醒目,觀察指(zhǐ)示器的方向(xiang)課根⛱️據客♍戶(hu)需要改變角(jiao)度。
  • 測量範圍(wéi)大,不受儲槽(cáo)高度限制。
  • 指(zhǐ)示機構與被(bei)測介質完全(quán)隔離,因而密(mi)封性好,可靠(kào)性高,使用安(ān)全。
  • 結構簡單(dān),安全方便,維(wéi)護費用低。
  • 耐(nai)腐蝕,無需電(dian)源,防爆。
      技術支持│易(yì)品網絡

总 公(gōng) 司急 速 版WAP 站(zhàn)H5 版无线端AI 智(zhì)能3G 站4G 站5G 站6G 站(zhàn)
·